Postavíme Váš
Snívate o novom rodinnom dome? Ste tu správne. Spoločnosť MJK sa zaoberá kompletnou výstavbou rodinných domov na kľúč. Zabezpečíme Vám vypracovanie projektu podľa Vašich predstáv, až po kompletnú realizáciu. Vyberte si z katalógu našich projektov.
Realizujeme prevažne výstavbu rodinných domov na kľúč, prípadne (podľa záujmov klienta) hrubú stavu, holodom, či rekonštrukcie stavieb. Vykonáme bezplatnú obhliadku na požiadanie zákazníka, vypracujeme rozpočet na Vaše požiadavky a po dohode uzatvoríme zmluvu.
Našim zákazníkom ponúkame
→ POMOC S VYBAVENÍM HYPOTÉKY
Ak sa obrátite na nás, pomôžeme vám nielen s posúdením toho, za akých podmienok budete schopní splácať hypotéku, ale následne pre vás nájdeme tú najvýhodnejšiu ponuku na trhu. Zároveň vám pomôžeme s kompletnou administratívou, ktorá súvisí so žiadosťou o poskytnutie hypotekárneho úveru.
→ DÁVAME SI ZÁLEŽAŤ
Našou snahou je realizovať vysokokvalitné stavby na základe projektovej dokumentácie a pritom vyhovieť všetkým požiadavkám zákazníkov. Dávame si veľmi záležať na všetkých nami prevedených prácach.
→ KVALITNÉ MATERIÁLY
V procese výstavby používame len certifikované materiály.
→ ZMENY POČAS VÝSTAVBY
Zákazníkom ponúkame možnosť riešenia drobných zmien aj počas výstavby, taktiež aj pravidelné stretnutia a konzultácie priamo na stavbe a odborné poradenstvo.
→ VYPRACOVANIE PROJEKTU
Na základe Vašej predstavy a po obhliadke pozemku Vám náš projektant pripraví návrh domu a bude ho upravovať až k Vašej úplnej spokojnosti, prípadne finančným možnostiam.
→ ZA SPLENÝM SNOM
Po vybavení stavebného povolenia môžeme začať s realizáciou Vášho domu.

HRUBÁ STAVBA
Ak sa rozhodnete pre hrubú stavbu zabezpečíme vám „surový“ dom. Surový v tom zmysle, že obsahuje základnú dosku a na nej postavené múry, strop, strechu a okná. Ostatné je na vás, aby ste si dobudovali podľa nášho vkusu, finančných prostriedkov a času. Hrubá stavba zahrňuje okrem zaizolovanej základnej platne aj nosné obvodové steny, vnútorné steny, strop, šikmá alebo rovná strecha, strešný presah, žľaby, plastové okná, vchodové dvere, ak je poschodový dom tak aj schody.

HRUBÁ STAVBA
Ak sa rozhodnete pre hrubú stavbu zabezpečíme vám „surový“ dom. Surový v tom zmysle, že obsahuje základnú dosku a na nej postavené múry, strop, strechu a okná. Ostatné je na vás, aby ste si dobudovali podľa nášho vkusu, finančných prostriedkov a času. Hrubá stavba zahrňuje okrem zaizolovanej základnej platne aj nosné obvodové steny, vnútorné steny, strop, šikmá alebo rovná strecha, strešný presah, žľaby, plastové okná, vchodové dvere, ak je poschodový dom tak aj schody.

STAVBA HOLODOMU
Ak sa rozhodnete pre holodom. Stavba, ktorú pre vás zrealizujeme bude skolaudovaná ako rodinný dom, oproti hrubej stavbe má pripojenie na inžinierske siete, hlavne na elektrickú, mestskú vodu, plyn a kanalizáciu. Bude to vlastne dom s nedokončeným interiérom. Obsahuje prvky ako povrchová úprava vonkajších aj vnútorných stien, strop, podlaha, zateplenie, kompletná elektroinštalácia, bleskozvod, rozvod vody, kúrenia, kanalizácia, komín.

STAVBA HOLODOMU
Ak sa rozhodnete pre holodom. Stavba, ktorú pre vás zrealizujeme bude skolaudovaná ako rodinný dom, oproti hrubej stavbe má pripojenie na inžinierske siete, hlavne na elektrickú, mestskú vodu, plyn a kanalizáciu. Bude to vlastne dom s nedokončeným interiérom. Obsahuje prvky ako povrchová úprava vonkajších aj vnútorných stien, strop, podlaha, zateplenie, kompletná elektroinštalácia, bleskozvod, rozvod vody, kúrenia, kanalizácia, komín.

STAVBY NA KĽÚČ
Ak sa rozhodnete pre stavbu domu na kľúč, všetky činnosti preberá na seba naša spoločnosť. Využitím tejto služby si zabezpečíte naše odborné služby od hrubej stavby až po zariadenie interiéru, tak aby spĺňal vaše predstavy. Obsahuje všetko to, čo holodom a navyše interiérové dvere, vnútorná stierka stien, obkladačky, laminátová podlaha, sanitárne predmety (umývadlo, WC, batérie, vaňa), povrchové úpravy stien, maľba.

STAVBY NA KĽÚČ
Ak sa rozhodnete pre stavbu domu na kľúč, všetky činnosti preberá na seba naša spoločnosť. Využitím tejto služby si zabezpečíte naše odborné služby od hrubej stavby až po zariadenie interiéru, tak aby spĺňal vaše predstavy. Obsahuje všetko to, čo holodom a navyše interiérové dvere, vnútorná stierka stien, obkladačky, laminátová podlaha, sanitárne predmety (umývadlo, WC, batérie, vaňa), povrchové úpravy stien, maľba.

ZEMNÉ A VÝKOPOVÉ PRÁCE
Naše služby zahŕňajú aj zemné a výkopové práce. Vďaka nášmu vlastnému bagru, dokážeme tieto práce realizovať rýchlo a spoľahlivo, či už ide o prípravu terénu, základy stavieb, alebo iné zemné úpravy. Okrem toho ponúkame aj energetickú certifikáciu nehnuteľností, ktorá je nevyhnutná pre predaj, prenájom alebo kolaudáciu objektov. Naša komplexná ponuka služieb vám zabezpečí hladký priebeh stavebných projektov.

ZEMNÉ A VÝKOPOVÉ PRÁCE
Naše služby zahŕňajú aj zemné a výkopové práce. Vďaka nášmu vlastnému bagru, dokážeme tieto práce realizovať rýchlo a spoľahlivo, či už ide o prípravu terénu, základy stavieb, alebo iné zemné úpravy. Okrem toho ponúkame aj energetickú certifikáciu nehnuteľností, ktorá je nevyhnutná pre predaj, prenájom alebo kolaudáciu objektov. Naša komplexná ponuka služieb vám zabezpečí hladký priebeh stavebných projektov.
4 kroky k vášmu vysnívanému domovu
Konfigurácia rodinného domu
Na začiatku nás čaká spoločná príprava projektu Vášho domčeka. Vyberiete si typ, ktorý Vám najviac vyhovuje a v prípade, že máte ďalšie špecifické želania, nájdeme spôsob, ako ich do projektu zapracovať. Výbava bude presne podľa Vašich prianí a každá položka môže byť modifikovaná, ako si budete želať.
Administratíva
V druhom kole musíme zabezpečiť všetky nutné podklady a predovšetkým úradné povolenia pre samotnú výstavbu. S daným procesom máme bohaté skúsenosti a radi Vám pomôžeme a stavebné povolenie za Vás vybavíme my.
Výstavba
Hneď ako dostaneme od zodpovedných úradov zelenú, pustíme sa do výstavby Vášho domčeka. O postupe výstavby budete celú dobu informovaní, aby ste mohli od základov dohliadať na celý proces.
Odovzdanie
A sme v cieli! Čaká nás už len detailná kontrola odovzdanej stavby, uzavretie rozpočtu a slávnostné prebratie kľúča od Vášho domčeka snov. Nech sa páči, je len Váš!
Bungalov 01
Úžitková plocha: 97,35 m²
Obytná plocha: 72,19 m²
Počet izieb: 4
Garáž: nie
Terasa: áno
Samostatne stojací prízemný bungalov bez podpivničenia je vhodný do rovinatého, prípadne mierne svahovitého terénu. Je to dom malej veľkostnej kategórie. Vhodný pre bývanie 4 člennej rodiny.
Vstup do domu je chránený vypustenou strechou. Dispozične je dom rozdelený na dennú a nočnú časť. Dennú časť tvorí otvorená kuchyňa s jedálňou a obývacou časťou. Terasa je prístupná z obývacej časti. Za kuchyňou je situovaná komora. V nočnej časti na druhej strane sa nachádzajú 3 izby. Technické zázemie medzi dennou a nočnou časťou tvoria kúpeľňa s WC, samostatné WC a technická miestnosť.
Dom je riešený ako murovaný so zateplením. Strecha objektu je sedlová (tradičný krov alebo väzníkový) s predĺžením nad terasu (prípadne bez zastrešenia terasy). Dom je vhodný pre orientáciu vstupu na juh a terasy na východ alebo západ.
Bungalov 02
Úžitková plocha: 169,00 m²
Obytná plocha: 90,11 m²
Počet izieb: 4
Garáž: áno (pre dve autá)
Terasa: áno
Samostatne stojací prízemný bungalov bez podpivničenia je vhodný do rovinatého, prípadne mierne svahovitého terénu. Je to dom strednej veľkostnej kategórie. Vhodný pre bývanie 4 člennej rodiny.
Vstup do domu je chránený vypustenou strechou uloženou na stĺporadí. Zo zádveria sa dostaneme do chodby ktorá spája dennú a nočnú časť. Dennú časť tvorí otvorená kuchyňa s jedálňou a obývacou časťou.
Terasa je prístupná cez portálové dvere v obývacej časti. Pri kuchyni je situovaná komora. V nočnej časti sa nachádzajú 3 izby. Technické zázemie medzi dennou a nočnou časťou tvoria kúpeľňa s WC, samostatné WC, technická miestnosť a garáž pre parkovanie dvoch motorových vozidiel. Technická miestnosť je prístupná z exteriéru a garáže. Dom je riešený ako murovaný so zateplením. Strecha objektu je valbová (väzníkový krov) s predĺžením nad terasu (prípadne bez zastrešenia terasy).
Dom je vhodný pre orientáciu vstupu na východ alebo západ a terasy na juhovýchod alebo juhozápad.
Bungalov 03
Úžitková plocha: 150,34 m²
Obytná plocha: 99,31 m²
Počet izieb: 4
Garáž: nie
Terasa: áno
Samostatne stojací prízemný bungalov bez podpivničenia je vhodný do rovinatého terénu. Je to dom väčšej veľkostnej kategórie. Vhodný pre bývanie 4-6 člennej rodiny.
Vstup do domu je chránený vypustenou strechou uloženou na mohutnom stĺpe. Parkovanie motorového vozidla je riešené plochou pri vstupe s plochou strechou uloženou na stĺporadí. Zo zádveria sa dostaneme do chodby ktorá spája dennú a nočnú časť. Dennú časť tvorí otvorená kuchyňa s jedálňou a obývacou časťou. Terasa je prístupná cez portálové dvere v obývacej časti. V rámci kuchynskej časti je umiestnená komora. V nočnej časti sa nachádzajú 3 izby. Z toho jedná s vlastným šatníkom a kúpeľňou. Technické zázemie medzi dennou a nočnou časťou tvoria kúpeľňa s WC, samostatné WC, technická miestnosť a skladová miestnosť.
Dom je riešený ako murovaný so zateplením. Strecha objektu je plochá (betónový strop príp. väzníková strecha s miernym sklonom). Dom je vhodný pre orientáciu vstupu na sever alebo západ a terasy na juh.
Bungalov 04
Úžitková plocha: 91,90 m²
Obytná plocha: 69,68 m²
Počet izieb: 4
Garáž: nie
Terasa: áno
Samostatne stojací prízemný bungalov bez podpivničenia je vhodný do rovinatého, prípadne mierne svahovitého terénu. Je to dom malej veľkostnej kategórie. Vhodný pre bývanie 4 člennej rodiny.
Dispozične je dom rozdelený na dennú a nočnú časť. Dennú časť tvorí otvorená kuchyňa a obývacou časťou. Terasa je prístupná z obývacej časti a spálne, ktorá je izolovaná od detských izieb. Pri kuchyni je situovaná komora. V nočnej časti smerom do ulice sa nachádzajú 2 izby. Technické zázemie medzi dennou a nočnou časťou tvoria kúpeľňa s WC a technická miestnosť.
Dom je riešený ako murovaný so zateplením. Strecha je riešená plochá (betónový strop príp. väzníková strecha s miernym sklonom). Dom je vhodný pre orientáciu vstupu na juh a terasy na juhovýchod alebo juhozápad.
Bungalov 05
Úžitková plocha: 142,18 m²
Obytná plocha: 89,72 m²
Počet izieb: 4
Garáž: nie
Terasa: áno
Samostatne stojací prízemný bungalov bez podpivničenia je vhodný do rovinatého, prípadne mierne svahovitého terénu. Je to dom väčšej veľkostnej kategórie. Vhodný pre bývanie 4 člennej rodiny.
Vstup do domu je chránený samostatnou presklenou strieškou ukotvenou na lanách. Zo zádveria je prístupné samostatné WC a chodba, ktorá spája dennú a nočnú časť. Dennú časť tvorí otvorená kuchyňa, jedáleň a obývacia izba. Terasa je prístupná cez portálové dvere v obývacej časti. Súčasťou kuchyne je komora.
V nočnej časti sa nachádzajú 3 izby, každá s vlastným šatníkom. Technické zázemie medzi dennou a nočnou časťou tvoria kúpeľňa s WC a technická miestnosť prístupná aj z terasy. Nika v chodbe je vhodná pre situovanie šatníka.
Dom je riešený ako murovaný so zateplením. Strecha objektu je rozdelená na dve samostatné pultové strechy. Strecha dennej časti je osadená nižšie a dom pôsobí modernejšie a zaujímavejšie. Dom je vhodný pre orientáciu vstupu na sever a terasy na juhovýchod alebo juhozápad.
Bungalov 06
Úžitková plocha: 93,66 m²
Obytná plocha: 72,88 m²
Počet izieb: 4
Garáž: nie
Terasa: áno
Samostatne stojací prízemný bungalov bez podpivničenia je vhodný do rovinatého, prípadne mierne svahovitého terénu. Je to dom malej veľkostnej kategórie. Vhodný pre bývanie 4 člennej rodiny.
Dispozične je dom rozdelený na dennú a nočnú časť. Dennú časť tvorí otvorená kuchyňa a obývacou časťou. Terasa je prístupná z obývacej časti a spálne, ktorá je izolovaná od detských izieb. V nočnej časti sa nachádzajú 2 izby. Technické zázemie medzi dennou a nočnou časťou tvoria kúpeľňa s WC a technická miestnosť.
Dom je riešený ako murovaný so zateplením. Strecha je sedlová (väzníková strecha s malým sklonom). Dom je vhodný pre orientáciu vstupu na juh a terasy na juhovýchod alebo juhozápad.
Bungalov 07
Úžitková plocha: 77,55 m²
Obytná plocha: 52,22 m²
Počet izieb: 3
Garáž: nie
Terasa: áno
Samostatne stojací prízemný bungalov bez podpivničenia je vhodný do rovinatého, prípadne mierne svahovitého terénu. Je to dom malej veľkostnej kategórie. Vhodný pre bývanie 3-4 člennej rodiny. Dispozične je dom rozdelený na dennú a nočnú časť prístupnú zo zádveria. V rámci zádveria je situované samostatné WC.
Dennú časť tvorí kuchyňa a obývačka so stolovaním. Terasa je prístupná z obývacej miestnosti. V nočnej časti sa nachádzajú 2 izby. Technické zázemie medzi dennou a nočnou časťou tvoria kúpeľňa s WC a technická miestnosť.
Dom je riešený ako murovaný so zateplením. Strecha je sedlová (strecha s malým sklonom). Dom je vhodný pre orientáciu vstupu na východ alebo západ a terasy na východ alebo západ.
Bungalov 08
Úžitková plocha: 156,59 m²
Obytná plocha: 87,60 m²
Počet izieb: 4
Garáž: áno
Terasa: áno
Samostatne stojací prízemný bungalov bez podpivničenia je vhodný do rovinatého, prípadne mierne svahovitého terénu. Je to dom väčšej veľkostnej kategórie. Vhodný pre bývanie 4 člennej rodiny.
Vstup do domu je chránený vypustenou strechou. V zádverií sa nachádza uzatvorený šatník. Zo zádveria je prístupná technická miestnosť. Dennú časť tvorí otvorená priestranná kuchyňa s jedálňou a obývacou časťou. Terasa je prístupná cez portálové dvere v jedálenskej časti. Pri kuchyni je situovaná malá komora. V nočnej časti sa nachádzajú 3 izby. Jedná izba so šatníkom. Technické zázemie medzi dennou a nočnou časťou tvoria kúpeľňa s WC, samostatné WC, práčovňa, technická miestnosť a garáž pre parkovanie dvoch motorových vozidiel. Garáž je v prístupná cez technickú miestnosť.
Dom je riešený ako murovaný so zateplením. Strecha objektu je valbová (väzníkový krov) s predĺžením nad terasu (prípadne bez zastrešenia terasy). Dom je vhodný pre orientáciu vstupu na severovýchod alebo severozápad a terasy na juhovýchod alebo juhozápad.
Bungalov 09
Úžitková plocha: 150,29 m²
Obytná plocha: 75,25 m²
Počet izieb: 5
Garáž: áno (2)
Terasa: áno
Samostatne stojací prízemný bungalov bez podpivničenia je vhodný do rovinatého, prípadne mierne svahovitého terénu. Je to dom strednej veľkostnej kategórie. Vhodný pre bývanie 4-6 člennej rodiny.
Vstup do domu je chránený vypustenou strechou. Zo zádveria je prístupná dvojgaráž a samostatné WC cez ktoré sa prechádza do technickej miestnosti. Dennú časť tvorí otvorená priestranná kuchyňa s jedálňou a obývacou časťou. Terasa je prístupná cez portálové dvere v obývacej časti. Nočná časť domu je od dennej oddelená chodbou. Nočnú časť tvoria tri spálne. Jedná spálňa so šatníkom a vlastnou kúpeľňou. Na chodbe sa nachádza aj kúpeľňa pre ostatné spálne.
Dom je riešený ako murovaný so zateplením. Strecha objektu je sedlová (tradičný krov) s predĺžením nad terasu. Dom je vhodný pre orientáciu vstupu na sever.
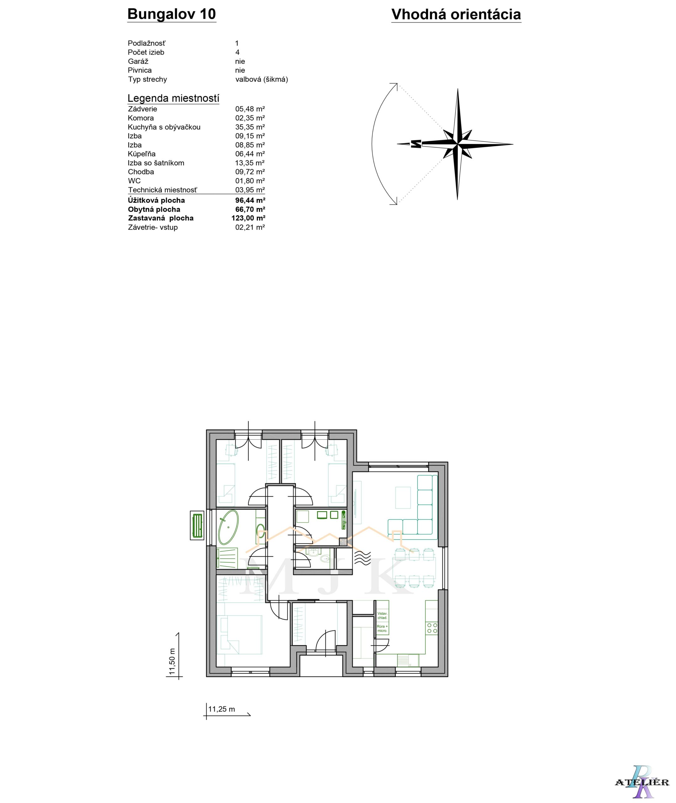
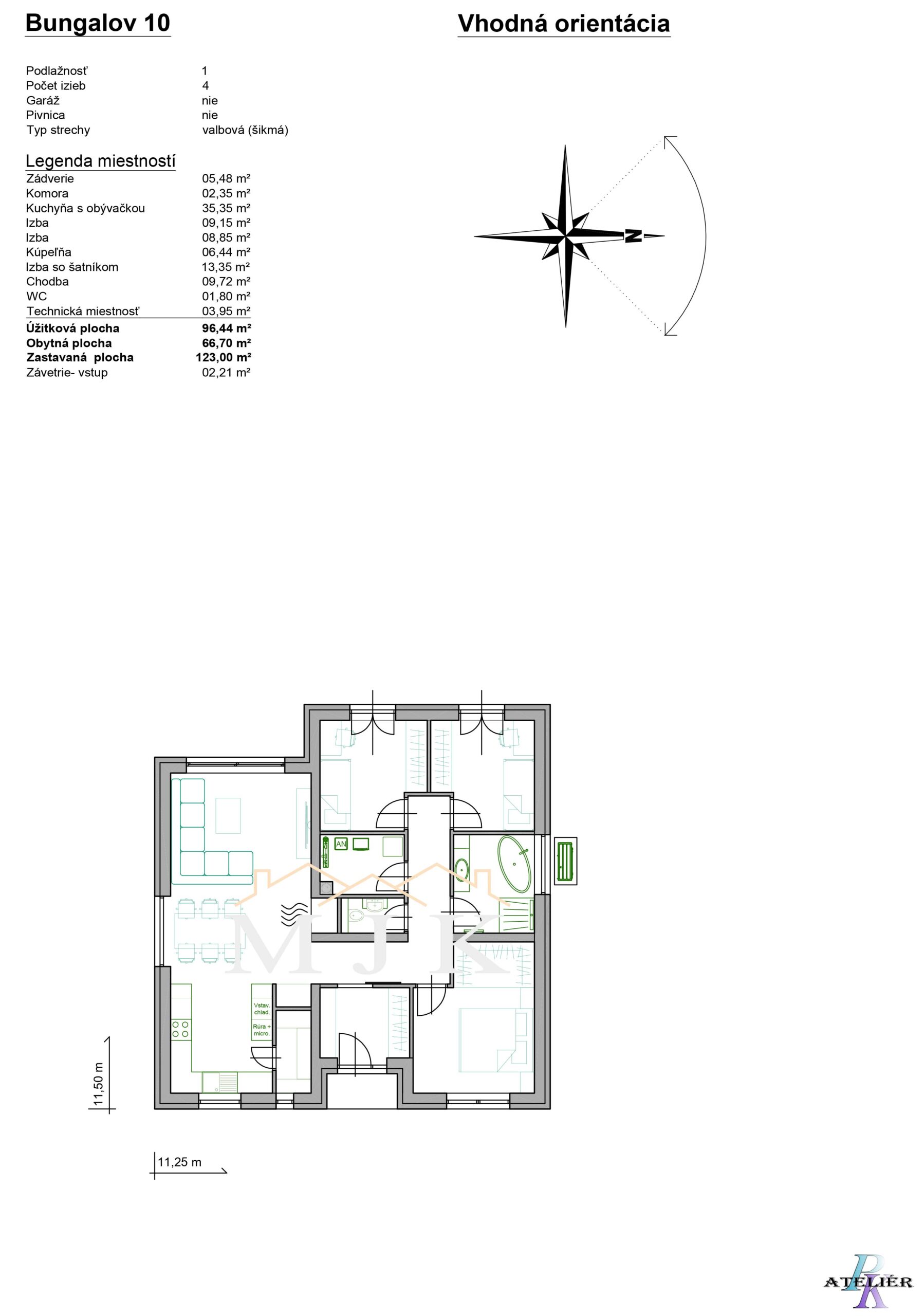
Bungalov 10
Úžitková plocha: 96,44 m²
Obytná plocha: 66,70 m²
Počet izieb: 4
Garáž: nie
Terasa: nie
Samostatne stojací prízemný bungalov bez podpivničenia je vhodný do rovinatého, prípadne mierne svahovitého terénu. Je to dom strednej veľkostnej kategórie. Vhodný pre bývanie 4 člennej rodiny.
Vstup do domu je chránený zapusteným závetrím. Zo zádveria je prístupná chodba spájajúca dennú a nočnú časť domu. Dennú časť tvorí otvorená priestranná kuchyňa s jedálňou a obývacou časťou. Prípadná terasa je prístupná cez portálové dvere v obývacej časti. Nočnú časť tvoria tri spálne. Jedná spálňa so šatníkom. Technické zázemie domu troví technická miestnosť, kúpeľňa a samostatné WC.
Dom je riešený ako murovaný so zateplením. Strecha objektu je valbová (vhodna pre väznikové konštrukcie) s prípadným predĺžením nad terasu. Dom je vhodný pre orientáciu vstupu na východ.
Poschodový 01
Úžitková plocha: 89,50 m²
Obytná plocha: 52,08 m²
Počet izieb: 4
Garáž: nie
Terasa: áno
Samostatne stojací poschodový rodinný dom bez podpivničenia je vhodný do rovinatého, prípadne mierne svahovitého terénu. Je to dom malej veľkostnej kategórie. Vhodný pre bývanie 3 člennej rodiny.
Vstup do domu je chránený samostatnou strieškou. Zo zádveria je prístupné samostatné WC a priestor dennej časti. Dennú časť tvorí otvorená kuchyňa so stolovaním a obývacia izba. Terasa je prístupná cez portálové dvere v obývacej časti a stolovania v kuchyni. Na prízemí sa nachádza technická miestnosť s o sprchovacím priestorom. Do nočnej časti na poschodí sa dostaneme otvoreným schodiskom situovaným v obývacej izbe. V nočnej časti na poschodí sú situované spálňa s terasou a izba s balkónom a tiež kúpeľňa s WC a prístupom na balkón.
Dom môže byť murovaný alebo drevený. Strecha objektu je pultová. Dom je vhodný pre orientáciu vstupu na sever a terasy na juhovýchod alebo juhozápad.
Poschodový 02
Úžitková plocha: 138,44 m²
Obytná plocha: 92,56 m²
Počet izieb: 4
Garáž: nie
Terasa: áno
Samostatne stojací poschodový rodinný dom bez podpivničenia je vhodný do rovinatého, prípadne mierne svahovitého terénu. Je to dom strednej veľkostnej kategórie. Vhodný pre bývanie 4-6 člennej rodiny.
Vstup do domu je chránený samostatnou sklenenou strieškou uchytenou na oceľových lanách. V zádverí je situovaná technická miestnosť a samostatné WC. Schodisko je umiestnené v strede domu. Dennú časť tvorí čiastočne uzatvorená kuchyňa a obývacia izba so stolovaním a prístupom na terasu cez portálové dvere. V nočnej časti na poschodí sú situované 3 spálne, kúpeľňa a samostatné WC.
Dom môže byť murovaný alebo drevený. Strecha objektu je sedlová. Dom je vhodný pre orientáciu vstupu na západ a terasy na východ.
Poschodový 03
Úžitková plocha: 178,65 m²
Obytná plocha: 89,30 m²
Počet izieb: 5
Garáž: áno
Terasa: áno
Samostatne stojací poschodový rodinný dom s podpivničenou garážovou časťou je vhodný do rovinatého, prípadne mierne svahovitého terénu. Je to dom strednej veľkostnej kategórie. Vhodný pre bývanie 4-6 člennej rodiny.
Vstup do domu je chránený samostatnou strieškou na dvoch stĺpoch. Zo vstupu je prístupné zádverie domu, cez ktoré vstupujeme do chodby spájajúcej dennú a nočnú časť domu. Dennú časť tvoria priestranná otvorená kuchyňa s obývačkou. Z obývačky je prístupná exteriérová terasa. Na prízemí sa nachádza aj jedná izba, malý skladový priestor pod schodiskom a technické zázemie domu. Technické zázemie predstavuje kúpeľňa s WC a technická miestnosť. Z technickej miestnosti je prístupná garáž pre jeden automobil.
Nočnú časť domu – podkrovie tvoria tri izby a jeden spoločný šatník prístupný z chodby. Súčasťou je aj kúpeľňa s WC. Pod garážovou časťou sa nachádza podzemná časť domu pivnica, ktorá je prístupná cez exteriérové schodisko. Strecha objektu je sedlová. Dom je vhodný pre orientáciu vstupu na juhozápad.
Poschodový 04
Úžitková plocha: 161,77 m²
Obytná plocha: 78,80 m²
Počet izieb: 4
Garáž: áno
Terasa: áno
Samostatne stojací poschodový rodinný dom bez podpivničenia s garážovou je vhodný do rovinatého, prípadne mierne svahovitého terénu. Je to dom strednej veľkostnej kategórie. Vhodný pre bývanie 4-6 člennej rodiny.
Vstup do domu je chránený strieškou ktorá pokračuje z vystúpenej garáže. Zo vstupu je
prístupné zádverie domu, cez ktoré vstupujeme do chodby spájajúcej dennú a nočnú časť domu. Dennú časť tvoria priestranná otvorená kuchyňa s obývačkou. Z obývačky je prístupná exteriérová terasa. Na prízemí sa nachádza malý skladový priestor pod schodiskom a technické zázemie domu. Technické zázemie predstavuje kúpeľňa s WC a technická miestnosť. Z technickej miestnosti je prístupná garáž pre jeden automobil.
Nočnú časť domu – podkrovie tvoria tri izby a jeden spoločný šatník prístupný z chodby. Súčasťou je aj kúpeľňa s WC. Dom môže byť murovaný alebo drevený. Strecha objektu je sedlová. Dom je vhodný pre orientáciu vstupu na juhozápad.
Postaviť si vlastný dom, už vôbec nie je také zložité!
Túto činnosť robíme denne, preto máme bohaté skúsenosti a vieme vyriešiť rôzne vzniknuté situácie.
Certifikáty
V spoločnosti MJK StavReal s. r. o. kladieme dôraz na kvalitu, spoľahlivosť a zodpovedný prístup k životnému prostrediu. Úspešne sme získali certifikáty ISO 9001 2015 a ISO 14001 2015, ktorými si plne stojíme za dodávaním excelentných služieb v oblasti komplexnej stavebnej činnosti a dodržiavaním princípov environmentálneho manažérstva. Pre nás to nie sú iba dokumenty – sú záväzkom, že sa neustále zlepšujeme.
















































































































































































